/
【外観】
- 管理 / 共益費
- 4,550円
- 礼金
- 19.46万円
- 建物面積
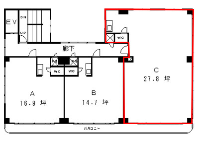
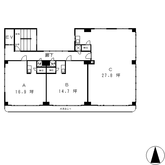
- 27.80坪(91.90㎡)
- 築年月
- 1991年1月(築34年)
-
エレベーター
- 保証金
- -
- 敷引 / 償却
- - / -
- 建物面積
- 91.90㎡
- 所在階 / 階建て
- 2階 / 5階建
- 建物構造
- 鉄筋コンクリート
- 築年月
- 1991年1月(築34年)
- 種別
- 事務所
- 契約期間
- 3年
- 保証会社 / 料金
-
必加入 / ニッポンインシュア
初回総賃料100%、更新保証料10%(下限20,000円)/年 - 駐車場
- 空有(7台) 8,800円
- 現況
- 空家
- 入居可能時期
- 相談
- その他条件
- 町内費:1,000円(月額)
- 取引条件の
有効期限 - 2025年11月20日
- 設備条件
-
- 事務所可 / 法人可 / 都市ガス / 公営水道 / 公共下水 / エレベーター / 電気有 / 駐輪場 / エアコン
- 賃貸区分
- 一般
- 保険会社 / 料金
- 有 23,000円 / 2年
- 取引態様
- 一般媒介
- 物件番号
- 88553407
- 情報更新日
- 2025年11月06日
- 次回更新予定日
- 2025年11月20日
- 備考
- 飲食店不可、土日・祝日利用可。専有部分にトイレあり。間取り、設備等現況優先 更新事務手数料22000円
-
コンビニエンスストア
ローソン 新潟駅南店
357m(5分)
-
コンビニエンスストア
ファミリーマート 新潟あぶみ三丁目店
605m(8分)
-
スーパー
イオン 笹口店
666m(9分)
-
銀行
大光銀行新潟駅南支店
712m(9分)
物件の特徴
セールスポイント
新着情報:エスポワール新潟の空室情報ならコチラ!賃料は21.406万円です!初期費用として礼金1ヵ月分がかかります(*^_^*)
ポイント
担当者のコメント
「エスポワール新潟」のここがイチオシ!エアコン付きなので、室内の温度調整が簡単です!賃料は21.406万円です!初期費用として礼金は1ヶ月分かかります(^o^)
基本情報
設備条件
その他
エスポワール新潟の他の物件
周辺施設
エスポワール新潟
21.41万円
4,550円
27.80坪(91.90㎡)
