エスポワール新潟
13.02万円(0.77万円/坪)
管理 / 共益費 4,550円
信越本線「新潟」駅徒歩13分
信越本線「越後石山」駅徒歩44分
越後線「白山」駅徒歩53分
- 賃料 / 坪単価
- 13.02万円 / 0.77万円
- 敷金(保証金)
- 35.49万円(-)
- 管理 / 共益費
- 4,550円
- 礼金
- 1.1ヶ月
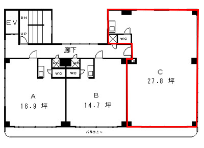
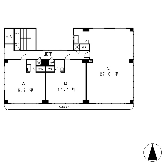
- 建物面積
- 16.90坪(55.87㎡)
- 築年月
- 1991年1月(築35年)
物件の特徴
-
エレベーター
セールスポイント
主要ビジネスタウンへ快適なアクセス
ポイント
担当者のコメント
基本情報
- 保証金
- -
- 敷引 / 償却
- - / -
- 建物面積
- 55.87㎡
- 所在階 / 階建て
- - / 6階建
- 建物構造
- 鉄筋コンクリート
- 築年月
- 1991年1月(築35年)
- 種別
- 事務所
- 契約期間
- 2年
- 保証会社 / 料金
-
必加入 / ニッポンインシュア
初回総賃料100%、更新保証料10%(下限20,000円)/年
- 駐車場
- 空有(7台) 8,800円 (税込)
- 現況
- 空家
- 入居可能時期
- 相談
- その他条件
- 町内費:1,000円(月額)
- 取引条件の
有効期限 - 2026年01月22日
設備条件
- 設備条件
-
- 事務所可 / 都市ガス / 公営水道 / 公共下水 / エレベーター / 電気有 / 駐輪場 / エアコン / 初期費用カード決済可
- 設備(その他)
-
-
現況が異なる場合は現況を優先させていただきます。
その他
- 賃貸区分
- 一般
- 保険会社 / 料金
- 有 株式会社住宅保障共済会 23,000円 / 2年
- 取引態様
- 専任媒介
- 物件番号
- 88532833
- 情報更新日
- 2026年01月08日
- 次回更新予定日
- 2026年01月22日
- 取扱会社
-
- ミニミニFC新潟店
- 新潟県新潟市中央区南笹口1丁目9-29
- TEL:025-243-4133
- 新潟県知事 (7) 第3931号
- 公益社団法人 全国宅地建物取引業保証協会
- 備考
- 飲食店不可、土日・祝日利用可。専有部分にトイレあり。間取り、設備等現況優先 更新事務手数料22000円
エスポワール新潟の他の物件
周辺施設
-
その他
大日本スクリーン製造株式会社新潟営業所
1m(1分)
-
その他
大吉 新潟駅南店
24m(1分)
-
その他
ハミングツアー 新潟営業所
37m(1分)
-
その他
iPhone修理アイサポ 新潟駅南店
82m(2分)
-
その他
はんこ屋さん21 新潟駅南店
82m(2分)
-
その他
アフラックサービスショップ新潟駅南有限会社ぱすてる
82m(2分)
-
整骨院
接骨院きゅら
156m(2分)
-
銀行
北越銀行 南新潟支店
218m(3分)
-
自動車教習所
新潟中央自動車学校
296m(4分)
-
コンビニエンスストア
ローソン 新潟駅南店
357m(5分)
-
ドラッグストア
笹口薬局
446m(6分)
-
コンビニエンスストア
ファミリーマート 新潟あぶみ三丁目店
605m(8分)
エスポワール新潟
13.02万円
4,550円
16.90坪(55.87㎡)
